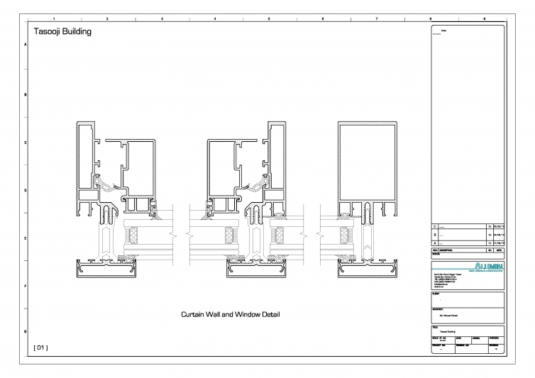
• Architect: Mr. Mousa Panah
  • Location: Tehran – Iran
  • Year of construction: 2011
  • Total area: 240 m2
  • Face Cap Aluminium Curtail Wall Area: 200 m2
Previous Next