• Owner: Saba Mihan Co.
  • Architect: 4D Studio Arsh
  • Location: Tehran – Iran
  • Year of construction: 2014
  • Total area: 7200 m2
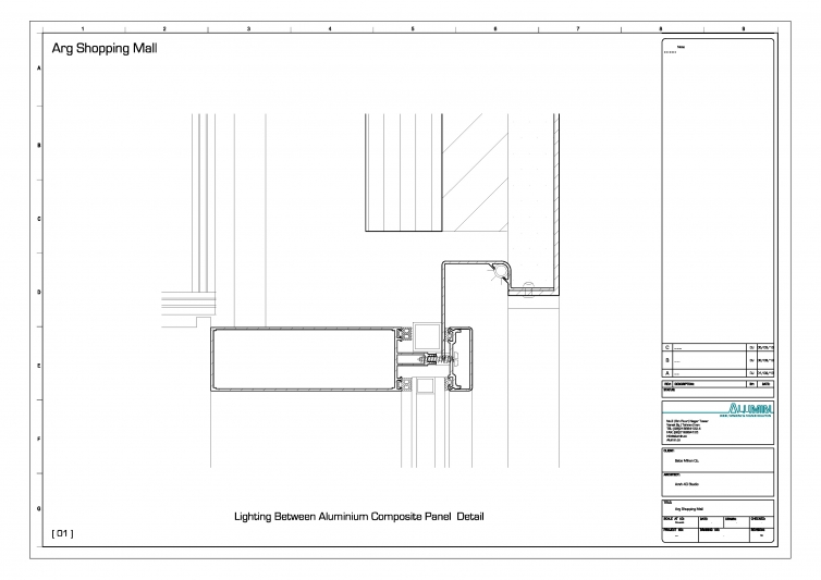
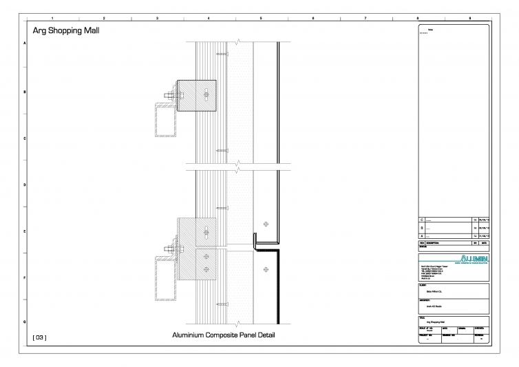
  • Aluminum composite panel area: 7200 m2
Previous Next